您目前所在的位置:首 页 >> 国内案例经典 >> 园林景观篇 >> 详细信息
绿城青海西宁园林景观设计公司
 
园林景观篇
城市设计篇
城市规划篇
旅游规划篇
建筑设计篇
景观工程篇
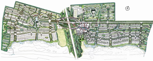
上海华城美地规划设计

【字体:  】【颜色: 绿
规划指导思想及原则: l、可持续发展原则 坚持规划建设的高标准与前瞻性,以保护生态环境为主旨,协调开发建设过程中的经济效益、社会效益与环境效益。 2、优化和节约用地原则 遵循“珍惜和合理利用土地”的基本国策,加强对土地资源的统筹安排,合理布置各类用地,为有计划招标、成片出让、综合开发土

规划区用地面积400公顷;
规划建设区用地295.69公顷。

地提供技术依据。3、突出特色、因地制宜的原则    合理确定规划区的功能布局、空间形态、路网结构及各项服务设施,加强环境建设,形成特色鲜明、环境优美、健康舒适的现代山水人居环境。4、分期建设原则    合理安排开发建设时序,指导土地及空间的有序开发与建设。注重可操作性,既体现高起点又结合苍溪实际,力求近期、中期的协调发展。








收藏此页】 【返回】 【打印】 【关闭
上一篇:上海香谢水都小区景观设计
下一篇:没有了
 
COPYRIGHT:GREENTOWN INT’L DESIGN & ENGINEERING GROUP (HK) LIMITED
大陆总部:中国重庆市渝中区 重庆绿城园林景观规划设计公司 邮编:400014    GREENTOWN.COM.CN
项目委托:023-89236166 /  邮箱:design@greentown.hk 在线市场邀请
青海分公司:西宁市城北区小桥大街129号 邮编:810003 邮件:qh@greentown.hk
关键词:园林设计、景观设计、绿化设计、园林景观设计、重庆园林设计公司、香港景观设计公司、重庆绿城、绿城国际
(GREEN TOWN) 园林设计公司 园林景观设计公司 重庆园林公司 重庆景观公司 重庆园林设计公司 景观设计公司 青ICP备05077498号

渝公网安备 50010302000607号

360网站安全检测平台